
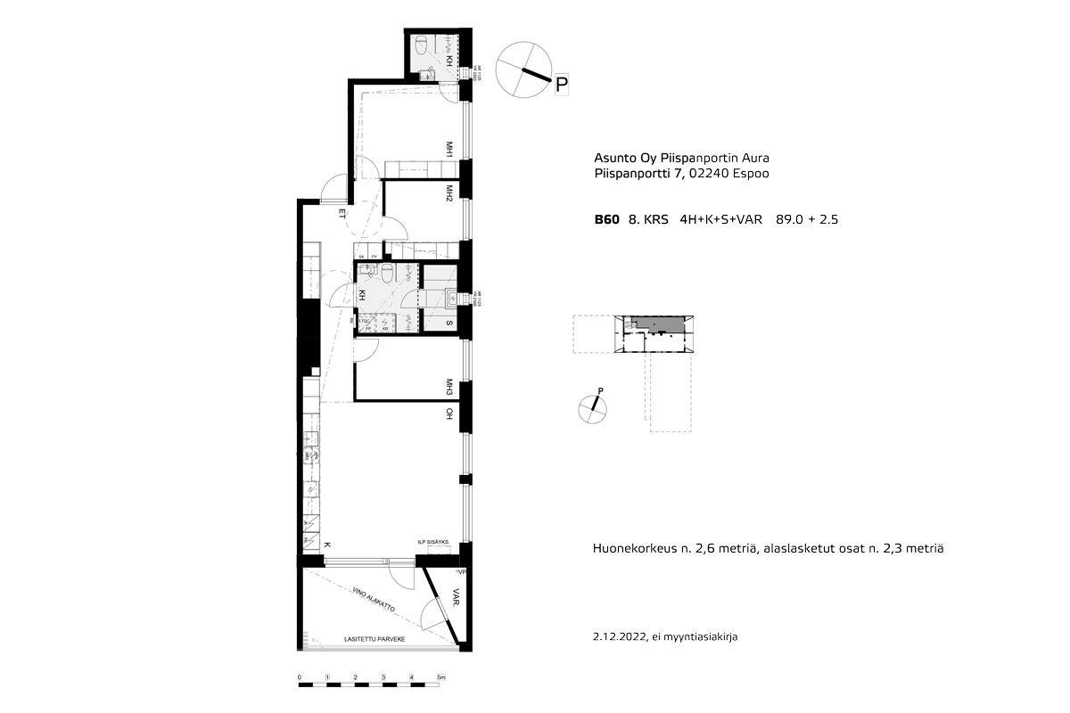
Piispanportti 7 B60
4 huonetta
, 89m2
Asunto Oy Piispanportin Aura, Espoo
Näyttävä ja tilava ylimmän kerroksen huoneisto.
Tyylikäs koti omalla saunalla, kahdella kylpyhuoneella ja suurella lasitetulla parvekkeella varustettuna. Ilmalämpöpumppu lisää asumismukavuutta.
Huoletonta asumista kaiken keskellä, omassa rauhassa
Tarjolla erinomainen syy muuttaa Espooseen – Asunto Oy Piispanportin Auran valitut uudiskodit nyt -10% normaalihinnoista. Kysytyt asunnot edustavat korttelin viimeisiä tarjolla olevia uudisasuntoja, omalla rauhallisella tontilla, Matinkylän ja Olarin palveluiden keskellä. Toimi nopeasti, etu on voimassa 18.8.-2.11.2025. Tutustu Piispanportin Auran asuntoihin näet valmiiksi lasketut hinnat.
Syksyn kampanjaetuna tarjoamme lisäksi uuden asunnon ostajalle yhden autohallipaikan hintaan 9 500 €. Tarvetta useammalle paikalle? Kampanjan myötä tarjolla kahden paikan paketti 15 000 € yhteishintaan. Autohallipaikkaosakkeen normaalihinta on 25 000 €, joten etusi voi olla jopa 35 000 €! Autopaikalle on saatavilla myös latausasema sähköautolle 2 200 € lisähintaan.
Asunto Oy Piispanportin Aura – muuttovalmiit kerrostalokodit odottavat sinua Piispanportin korttelissa!
Piispanportin Aura – tyylikäs ja viihtyisä koti keskeisellä sijainnilla
Tämä 6–8-kerroksinen kerrostalo sijaitsee omalla tontilla loistavalla paikalla, Olarin ja Matinkylän monipuolisten palvelujen äärellä. Taloyhtiössä on 63 modernia asuntoa, joiden koot vaihtelevat 28 m² aina tilaviin 125 m² huoneistoihin. Tarjolla on vielä muutamia haluttuja kolmioita ja suurempia koteja – nyt on mahdollisuutesi napata omasi!
Kauniita yksityiskohtia ja mukavuuksia arkeen
Piispanportin Auran kodit on suunniteltu vastaamaan nykypäivän asumisen toiveita. Tyylikkäät sisustusmateriaalit on valittu huolella, ja jokaisessa asunnossa on parveke- tai terassiratkaisu, joka tuo luonnonvalon ja avaruuden osaksi kotia. Taloyhtiön sisäpihalla voit rentoutua kauniissa viherkeitaassa, joka tarjoaa leikki- ja ulkoilumahdollisuudet sekä tilaa vaikkapa grillijuhlille. Piha-alueen rauhallinen metsänäkymä tuo luonnon aivan kotiovellesi.
Pysäköintihalli
Piispanportin Aurassa autopaikat sijaitsevat kätevästi katutasossa olevassa pysäköintihallissa, josta on suora hissiyhteys koteihin. Sähköauton latausmahdollisuus on myös huomioitu – autopaikat myydään erillisinä osakkeina. Kaikki Auran kodit ovat esteettömiä, joten ne sopivat erinomaisesti kaikille asukkaille.
Piispanportti – lähellä kaikkea, mitä tarvitset
Piispanportissa asut lähellä Länsiväylän rauhallisella pohjoispuolella, vain noin 15 kilometrin päässä Helsingin keskustasta. Iso Omenan monipuoliset palvelut ja erinomaiset julkisen liikenteen yhteydet ovat aivan nurkan takana, vain alikulkutunnelin päässä. Myös omalla autolla liikkuminen on sujuvaa. Alueelta löydät useita kouluja, päiväkoteja ja erinomaiset ulkoilumahdollisuudet, kuten Keskuspuiston luontopolut ja merenrantaraitin uimarantoineen.
Varaa oma esittelyaikasi jo tänään!
Piispanportin Aura on valmis ja odottaa sinua – sovi yksityisesittely asuntomyynnistämme numerosta 09 6130 3450 tai sähköpostitse asuntomyynti@eke.fi. Tervetuloa tutustumaan ja löytämään unelmiesi koti!
Hoitovastike 4,10 €/m2. Rahoitusvastike 1:tä maksetaan enintään 30.4.2026 saakka, jolloin yhtiölainasta maksetaan vain korko.
Rahoitusvastike 2 arvio on 0,0052 €/jyvitetty osake (lyhennysten alkamisen jälkeen, arvioitu korkokannan 4.9.2023 / 4,055 % mukaan). Lyhennysten kerääminen osakkailta aloitetaan viimeistään 1.5.2026. Arvioitu kokonaislaina-aika 25 vuotta, joista enintään kahden ensimmäisen vuoden ajan maksetaan vain korkoa. Yhtiölainan korko 12kk euribor + marginaali 1,00 %.
Viitekoron muutokset vaikuttavat rahoitusvastikkeen määrään. Yhtiölaina maksettavissa kaupanteon yhteydessä.
Hoito- ja rahoitusvastikkeiden lisäksi peritään vesimaksua 20€/hlö/kk, tasaus kulutuksen mukaan.
Autopaikat myydään erillisinä osakkeina. Autohallipaikkaosakkeen hinta on 25.000 €, sähkölatauspaikka 27.000 €.
Kohde on valmistunut 26.10.2023. Myyjä pidättää oikeuden muutoksiin.
Huippusijainti
Piispanportissa kaikki on lähellä
Olari sijaitsee Länsiväylän rauhallisella pohjoispuolella noin 15 kilometriä Helsingin keskustasta länteen. Iso Omenan palvelut ja hyvät julkisen liikenteen kulkuyhteydet ovat lähellä, vain alikulkutunnelin päässä. Myös omalla autolla pääset liikkumaan vaivattomasti. Olarissa on useita kouluja sekä päivä- ja iltapäiväkoteja. Lähiympäristö tarjoaa hyvät pyöräily- ja ulkoilumaastot. Keskuspuiston luonto Olarin pohjoisosassa ja merenrantaraitti uimarantoineen sekä kahviloineen ovat nekin lähettyvillä.

Ota yhteyttä






























